Sanierung Breitfeldstrasse


Objektname: Sanierung Breitfeldstrasse 32, Bern
Bauherrschaft: Pensionskasse der VALIANT HOLDING
Architektur: Elbe + Giovanelli AG
Geschossfläche: 1'020 m2
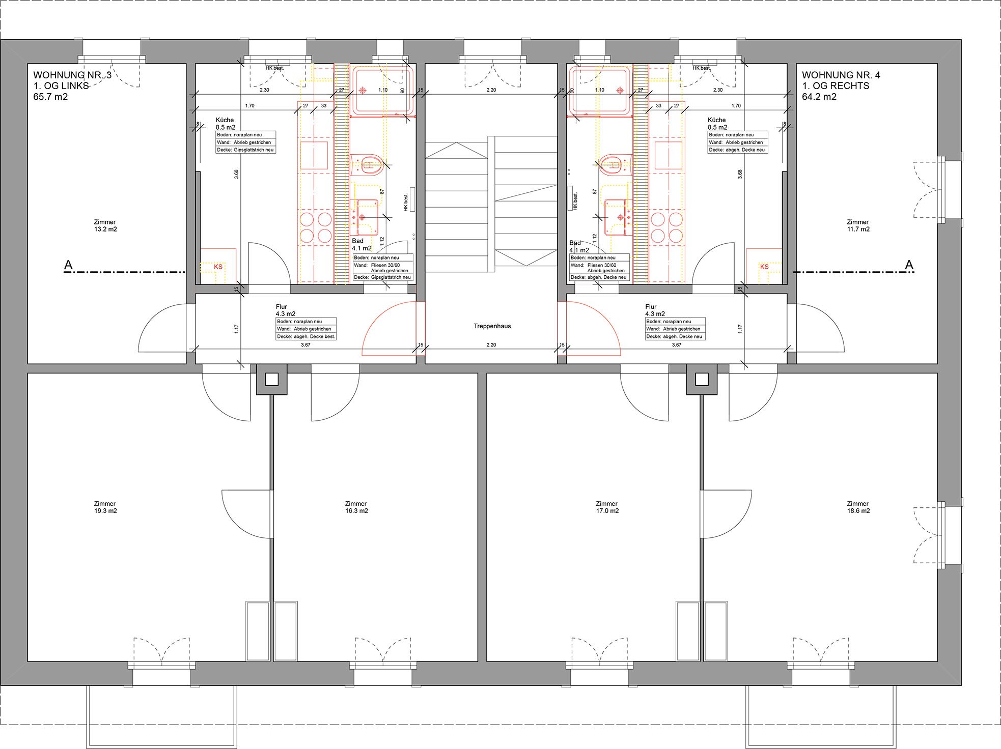
Wohnungen: 8 Wohnungen
Baukosten: ca. CHF 900'000
Fertigstellung: Sommer | Herbst 2025 (2 x 7 Wochen)
Rolle im Projekt: Bauprojekt, Baugesuch, Ausführungsplanung, Bauleitung


Projektziele und Umfang

Das Mehrfamilienhaus an der Breitfeldstrasse in Bern, ein erhaltenswertes Gebäude mit acht Wohneinheiten, wurde umfassend saniert, um modernen Wohnkomfort mit denkmalpflegerischen Anforderungen in Einklang zu bringen.

Sanierungsmassnahmen

Küchen und Bäder

  • Vollständige Erneuerung aller Küchen und Bäder

  • Installation neuer Steigleitungen zur Optimierung der Haustechnik

  • Hochwertige, moderne Ausstattung unter Berücksichtigung der bestehenden Raumstrukturen

Treppenhaus
Restaurierung nach denkmalpflegerischen Vorgaben
Rekonstruktion der ursprünglichen Farbgebung von 1907
Behutsame Sanierung der historischen Elemente wie Geländer und Türen

Denkmalpflegerische Aspekte

Besondere Aufmerksamkeit galt der Erhaltung der historischen Bausubstanz. Durch die Zusammenarbeit mit den zuständigen Denkmalpflegebehörden wurde sichergestellt, dass die Massnahmen den ursprünglichen Charakter des Gebäudes bewahren, während gleichzeitig eine zeitgemsse Nutzung ermöglicht wird.

Ergebnis und Nutzen

Der Umbau führte zu einer erheblichen Wohnwertsteigerung und stellt eine nachhaltige Investition in die Zukunft des Gebäudes dar. Während die technische Infrastruktur modernisiert wurde, bleibt das historische Ambiente erhalten und sorgt für eine hohe Wohnqualität.

Fazit

Das Projekt zeigt, wie durch eine sorgfältige Planung und Ausführung ein denkmalgeschütztes Mehrfamilienhaus erfolgreich modernisiert werden kann, ohne seine historische Identität zu verlieren.


Weitere Impressionen


Weitere Wohnprojekte

Weiter
Weiter

Wohnüberbauung Sonnmattweg, Lützelflüh